Trilocale in vendita

Riccione, Viale Verdi - Alba
€ 469.000
Prezzo aggiornato
3 locali 3 locali
97 Mq 97 Mq
2 bagni 2 bagni

Trilocale in vendita

Riccione, Viale Verdi - Alba

Descrizione annuncio

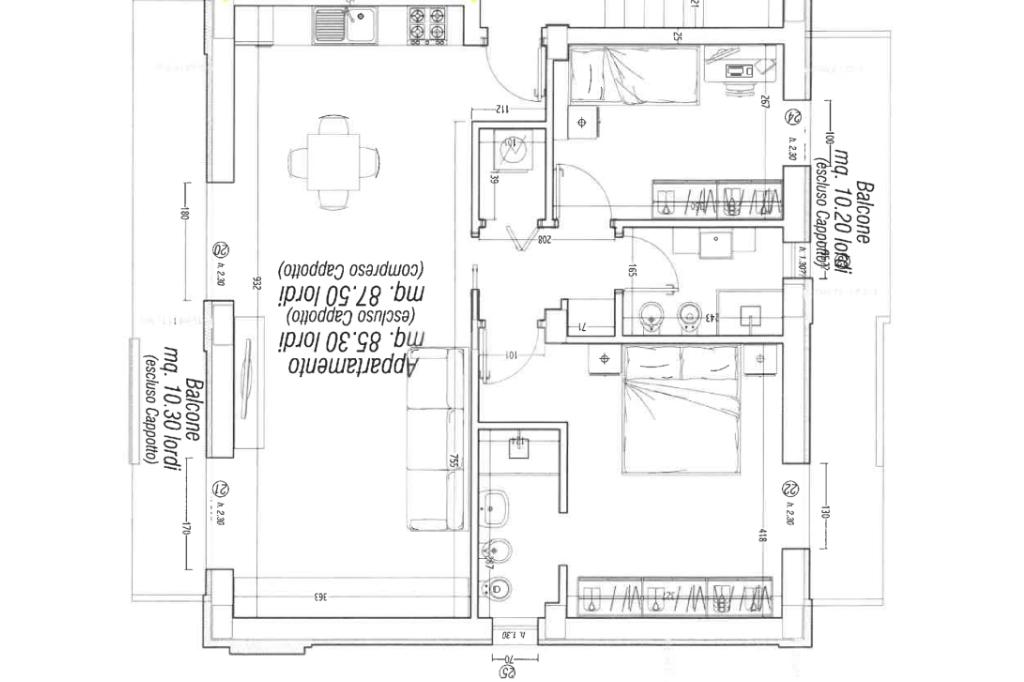
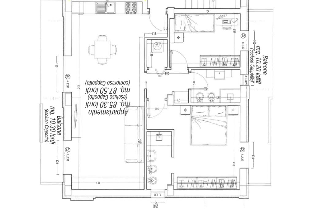
Riccione, zona Alba Mare, proponiamo trilocale con ascensore di nuova costruzione sito al piano secondo di una palazzina di poche unità.

La soluzione dispone di una zona giorno ampia e luminosa con angolo cottura e accesso diretto sul terrazzo e di una zona notte, composta da una camera matrimoniale con bagno, una camera singola e da un bagno finestrato con box doccia. Possibilità di ricavare una terza camera dividendo il soggiorno, trasformandolo in un quadrilocale.

La palazzina e l'immobile sono stati rifiniti con materiali di pregio, dotati di pompa di calore caldofreddo, infissi doppio vetro pvc, porta blindata e cappotto esterno.

Possibilità di acquistare a parte un garage situato al piano terra, fornito di presa per carica per macchina elettrica.

Visto l'ampia scelta di capitolato presso i migliori show-room, il costruttore ha deciso di lasciare per il momento l'appartamento al grezzo, dando la possibilità di personalizzare porte interne, pavimenti e i rivestimenti.

L'immobile verrà consegnato dal costruttore, finito.

CONSEGNA entro Dicembre 2025.


PER MAGGIORI INFORMAZIONI FISSA SUBITO UN APPUNTAMENTO 0541 14 13 715.

Mostra tutto

Nelle vicinanze

Trasporto pubblico Trasporto pubblico
stazione di Riccione
stazione di Riccione
1,6 Km
Alba
Alba
190 m
Alba Azzarita
Alba Azzarita
210 m
Ricariche auto elettriche Ricariche auto elettriche
Eneldrive Giulio Cesare
1,3 Km
Riccione Hotel Augustus
1,7 Km
Hotel Ambasciatori
2,3 Km
Distributore e+
2,8 Km
Eneldrive Cetacea
2,9 Km
Scuole Scuole
Scuola dell'Infanzia Mimosa
510 m
Scuola Primaria Annyka Brandi
570 m
Scuola Media Giovanni Pascoli
900 m
Liceo Scientifico Statele Alessandro Volta
920 m
Istituto Professionale Alberghiero Statale S. Savioli
990 m
Farmacia Farmacia
Farmacia dell'Alba
150 m
Parafarmacia Dante
350 m
D'Annunzio
390 m
Erboristeria l'alchimista
610 m
L'omeopatica sanitaria
670 m
Ospedali Ospedali
Ospedale Ceccarini
1,8 Km
Supermercati Supermercati
Le Primizie
110 m
Una Chicca
120 m
Market Portofino
320 m
Euromarket
490 m
Self Market
600 m
Negozi Negozi
Trasparenze intimo
40 m
Eliss
100 m
Lucky☆Star
100 m
Minimarket
100 m
Surfparadise
130 m
Bar Bar
Mint Hookah Lounge
140 m
Jazz
140 m
Nikka
230 m
La clinica
300 m
BMC
490 m
Ristoranti Ristoranti
Sushi Sekai
70 m
Alba
100 m
Vertigo
130 m
Spaghetteria n.5
190 m
La botte
220 m
Mostra tutto

Caratteristiche

Rif.:
61114634
Piano:
2 di 3 con ascensore (Piano alto)
Balconi:
2
Camere da letto:
2
Arredamento:
Assente
Condizionamento:
Autonomo
Mostra tutto
Prezzo Prezzo
€ 469.000
Prezzo box Prezzo box
€ 40.000
Rata mutuo Rata mutuo
€ 2.168 / mese
Proponi il tuo prezzoProponi il tuo prezzo
Immobile valutato con TecnoValore

Classe Energetica

A4
A4
A4
A4
A4
A4
A4
A4
A4
EP invernale del fabbricato:
EP estiva del fabbricato:
Anno di costruzione:
2025
Riscaldamento:
Autonomo
Tipo impianto:
A pavimento
Tipo alimentazione:
Altro

Prezzo ridotto di €1 (1%%)

Ti interessa visionare l'immobile?

Fissa un appuntamento  Fissa un appuntamento

Richiedi informazioni

* Questi campi sono obbligatori

Calcola il tuo mutuo

Semplice e senza impegno
Anticipo

( % )
Mutuo

( % )

pochi semplici passi

inserisci i tuoi dati
Questionario completato
Grazie per aver richiesto un appuntamento senza impegno con un nostro Consulente del Credito e Assicurativo.

Hai inserito correttamente tutti i dati necessari e a breve riceverai una e-mail con un link da convalidare per inviare i tuoi dati.
Affiliato
Studio Riccione Mare Srl
Viale Dante, 251/A 47838 Riccione (RN)

Il nostro staff


  • Massimo De Luca
    Affiliato

  • Francesco Baldisserri
    Affiliato

  • Aurora Aratari
    Collaboratrice
Viale Dante, 251/A 47838 Riccione (RN)
Zona: Riccione Alba residenziale-Alba Mare-Punta dell'est-Spontricciolo-San Lorenzo-Marano
Mostra su mappa
Orari: 09.00 - 13.00 15.30 -19.30
Affiliato
Studio Riccione Mare Srl
Viale Dante, 251/A 47838 Riccione (RN)

2025 Tecnocasa Franchising S.p.A. - P. IVA 08365160152 - Via Monte Bianco 60/A 20089 Rozzano (MI). Ogni agenzia ha un proprio titolare ed è autonoma. Privacy policy | Policy utilizzo | Cookie policy