Trilocale in vendita

Riccione, Viale Verdi - Alba
€ 410.000
2 locali 2 locali
86 Mq 86 Mq
1 bagno 1 bagno

Trilocale in vendita

Riccione, Viale Verdi - Alba

Descrizione annuncio

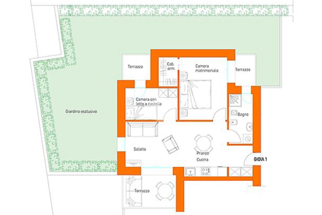
Riccione, zona Alba Mare,

Nel cuore della località Alba a Riccione, proponiamo un trilocale sito al piano terra di una palazzina costruita di recente.

L'appartamento è composto da un soggiorno con cucina a vista e affaccio diretto su un terrazzo vivibile e al giardino di 50 mq, un corridoio che conduce alla camera matrimoniale con accesso al giardino, alla camera doppia, e un bagno finestrato dotato di box doccia.

La soluzione presenta un alta efficienza energetica grazie all'impianto geotermico che presenta le seguenti caratteristiche:

- coibentazione, in fibre naturali ad alta traspirabilità;

-serramenti in PVC rinforzati a 5 camere di isolamento e 3 guarnizioni con vetro camera doppia e triplo vetro, garantendo isolamento termico e acustico;

-pannelli fotovoltaici;

-impianto di riscaldamento e raffrescamento a pavimento e VMC;

L'edificio è dotato di ascensore che arriva comodamente anche al piano seminterrato per raggiungere i garage.

L'acquisto del garage non è compreso nel prezzo.

Una soluzione abitativa che unisce praticità e qualità, a pochi passi dal centro e dalle spiagge di Riccione.

PER MAGGIORI INFORMAZIONI FISSA SUBITO UN APPUNTAMENTO 0541 14 13 715.

Mostra tutto

Nelle vicinanze

Trasporto pubblico Trasporto pubblico
stazione di Riccione
stazione di Riccione
1,7 Km
Alba
Alba
50 m
Trasporto pubblico
260 m
Ricariche auto elettriche Ricariche auto elettriche
Eneldrive Giulio Cesare
1,2 Km
Riccione Hotel Augustus
1,8 Km
Hotel Ambasciatori
2,4 Km
Distributore e+
2,7 Km
Eneldrive Cetacea
2,9 Km
Scuole Scuole
Scuola Primaria Annyka Brandi
460 m
Scuola dell'Infanzia Mimosa
470 m
Scuola Media Giovanni Pascoli
850 m
Liceo Scientifico Statele Alessandro Volta
880 m
Istituto Professionale Alberghiero Statale S. Savioli
950 m
Farmacia Farmacia
Farmacia dell'Alba
290 m
D'Annunzio
430 m
Parafarmacia Dante
450 m
Erboristeria l'alchimista
470 m
L'omeopatica sanitaria
550 m
Ospedali Ospedali
Ospedale Ceccarini
1,7 Km
Supermercati Supermercati
Market Portofino
180 m
Una Chicca
250 m
Le Primizie
250 m
Euromarket
480 m
Self Market
680 m
Negozi Negozi
Atelier Gina Dee
70 m
Vanille Stock
130 m
Trasparenze intimo
140 m
Negozi
180 m
Asif mini market
190 m
Bar Bar
La clinica
170 m
Mint Hookah Lounge
270 m
Jazz
280 m
Nikka
350 m
BMC
570 m
Ristoranti Ristoranti
La grande muraglia
150 m
Vertigo
180 m
Sushi Sekai
200 m
Alba
230 m
Rugantino
260 m
Mostra tutto

Caratteristiche

Rif.:
61160493
Piano:
Terra con giardino di 3 con ascensore
Totale piani:
3
Posti auto:
2
Camere da letto:
1
Arredamento:
Completo
Mostra tutto
Prezzo Prezzo
€ 410.000
Prezzo box Prezzo box
€ 40.000
Rata mutuo Rata mutuo
€ 1.946 / mese
Proponi il tuo prezzoProponi il tuo prezzo
Immobile valutato con T·Valuta

Classe Energetica

A4
A4
A4
A4
A4
A4
A4
A4
A4
EP invernale del fabbricato:
EP estiva del fabbricato:
Anno di costruzione:
2015
Riscaldamento:
Centralizzato
Tipo impianto:
A pavimento
Tipo alimentazione:
Pannelli

Ti interessa visionare l'immobile?

Fissa un appuntamento  Fissa un appuntamento

Richiedi informazioni

Clicca su Leggi per aprire l'informativa
* Questi campi sono obbligatori

Calcola il tuo mutuo

Semplice e senza impegno
Anticipo

( % )
Mutuo

( % )

pochi semplici passi

inserisci i tuoi dati
Questionario completato
Grazie per aver richiesto un appuntamento senza impegno con un nostro Consulente del Credito e Assicurativo.

Hai inserito correttamente tutti i dati necessari e a breve riceverai una e-mail con un link da convalidare per inviare i tuoi dati.
Affiliato
Studio Riccione Mare Srl
Viale Dante, 251/A 47838 Riccione (RN)

Il nostro staff


  • Massimo De Luca
    Affiliato

  • Francesco Baldisserri
    Affiliato

  • Luca Galgano
    Collaboratore

  • Aurora Aratari
    Collaboratrice
Viale Dante, 251/A 47838 Riccione (RN)
Zona: Riccione Alba residenziale-Alba Mare-Punta dell'est-Spontricciolo-San Lorenzo-Marano
Mostra su mappa
Orari: 09.00 - 13.00 15.30 -19.30
Affiliato
Studio Riccione Mare Srl
Viale Dante, 251/A 47838 Riccione (RN)

2026 Tecnocasa Franchising S.p.A. - P. IVA 08365160152 - Via Monte Bianco 60/A 20089 Rozzano (MI). Ogni agenzia ha un proprio titolare ed è autonoma. Privacy policy | Policy utilizzo | Cookie policy